Landlord:Verra West
Address:1420 Renaissance Dr, Longmont, CO 80503
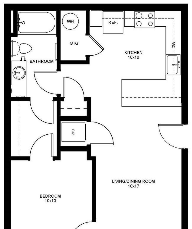
Layout
1 bed, 1 bath, 473 sqft
Pets
NO
Unit Features:
Rent Facts:
$850
3 beds
$450
1 beds
$1200