Landlord:Lux
Address:1000 100th Ave NE, Bellevue, WA 98004
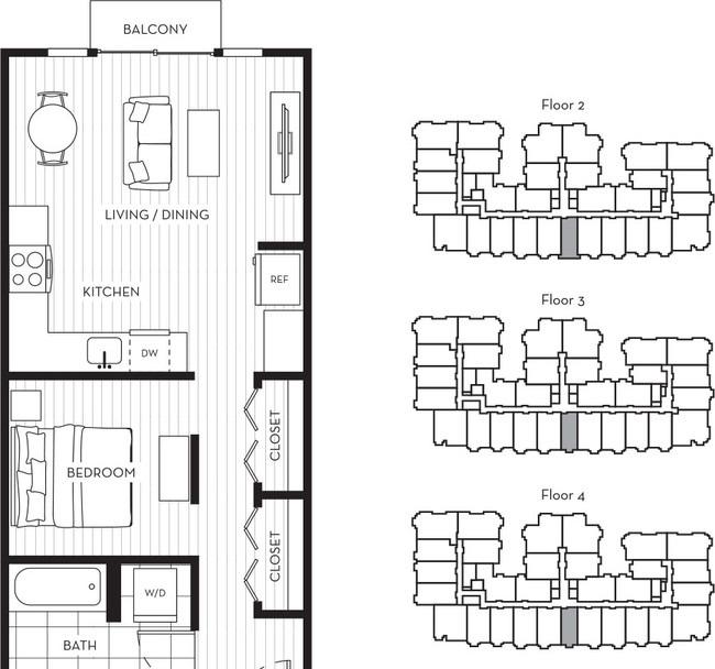
Layout
0 bed, 0 bath, 817 sqft
Pets
NO
Unit Features:
Rent Facts:
$3000
1 beds
$800
3 beds
$1200